计量论坛

 找回密码
 立即注册

QQ登录

只需一步,快速开始

搜索

[通用量具] 求助:内径量表问题解决!!!

[复制链接]
michael_hu521 发表于 2009-12-11 16:05:19 | 显示全部楼层 |阅读模式
请问各位大师!请解释一下下面这个图片的原理,为什么会坏掉?
未命名.jpg

未命名1.jpg

请各位指教!
szautumn 发表于 2009-12-12 20:01:41 | 显示全部楼层
内径表.jpg
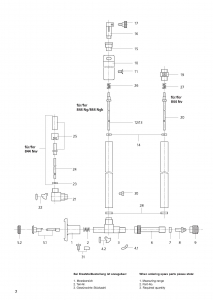
这是Diatest的内径表的结构图,你照片中的那个坏的组件是不是与图中那个组件"3"相类似?
这个组件是将测头触点的移动向上传递到指示表上的关键部位,内部结构安装比较复杂,通常如果要维修,是把整套组件换掉,也就是类似于我上面的结构图中的组件3.
吉利阿友 发表于 2009-12-13 19:59:18 | 显示全部楼层
初看楼主所附图片,发现活动测头居然缺失了。只有一种可能:该表杆(架)肯定被拆过。使用者如果因操作原因导致的损坏,不可能损坏到这个地步。
图示是典型的6-10mm内径表表杆的常用结构,国产的成量的6-10mm的内径表表杆就是这种结构。  原理上怎么讲呢,应该是近似杠杆原理了。之所以说是 近似 ,是因为这个杠杆 是由一平面(图一所示的半圆块)与一钢珠组成的,与一般的杠杆概念完全不同。通过调节半圆块平面的角度来调节传动比(杠杆比),从而实现杠杆传动的线性。
该结构的组装方式是:松开图示中的黄铜色部件,通过合理的方法拆下护桥(与固定测头相联的那个U型块,该块与表杆基体是过盈配合的),拆下与黄铜部件相联的螺杆,就可以取下半圆块,然后松开与黄铜部件相联的螺杆边上上的沉头螺检,就可取下活动测头。  组装反这则可。

这两张图片所表述的现象说明造成这种局面的原因只有一种可能:如果是使用者损坏后,私自拆过,说明这个人的钻研精神不错,拆开后装不完全,说明其动手能力一般般,这种局面应该不是操作者造成的。照我的经验,那么只有一种可能,就不明说了。
shihongxing123 发表于 2009-12-16 09:25:50 | 显示全部楼层
这个活动测头里面有哪些配件,红宝石有吗?V形状轴承有吗,那位能拍一个 完整图片,那太好了 ,这样才会明白,有时候图片更能说明问题。谢谢。
您需要登录后才可以回帖 登录 | 立即注册

本版积分规则

小黑屋|Archiver|计量论坛 ( 闽ICP备06005787号-1—304所 )
电话:0592-5613810 QQ:473647 微信:gfjlbbs闽公网安备 35020602000072号

GMT+8, 2025-10-18 19:34

Powered by Discuz! X3.4

Copyright © 2001-2023, Tencent Cloud.

快速回复 返回顶部 返回列表